Ueno

  • 1F-M2
  • 2F
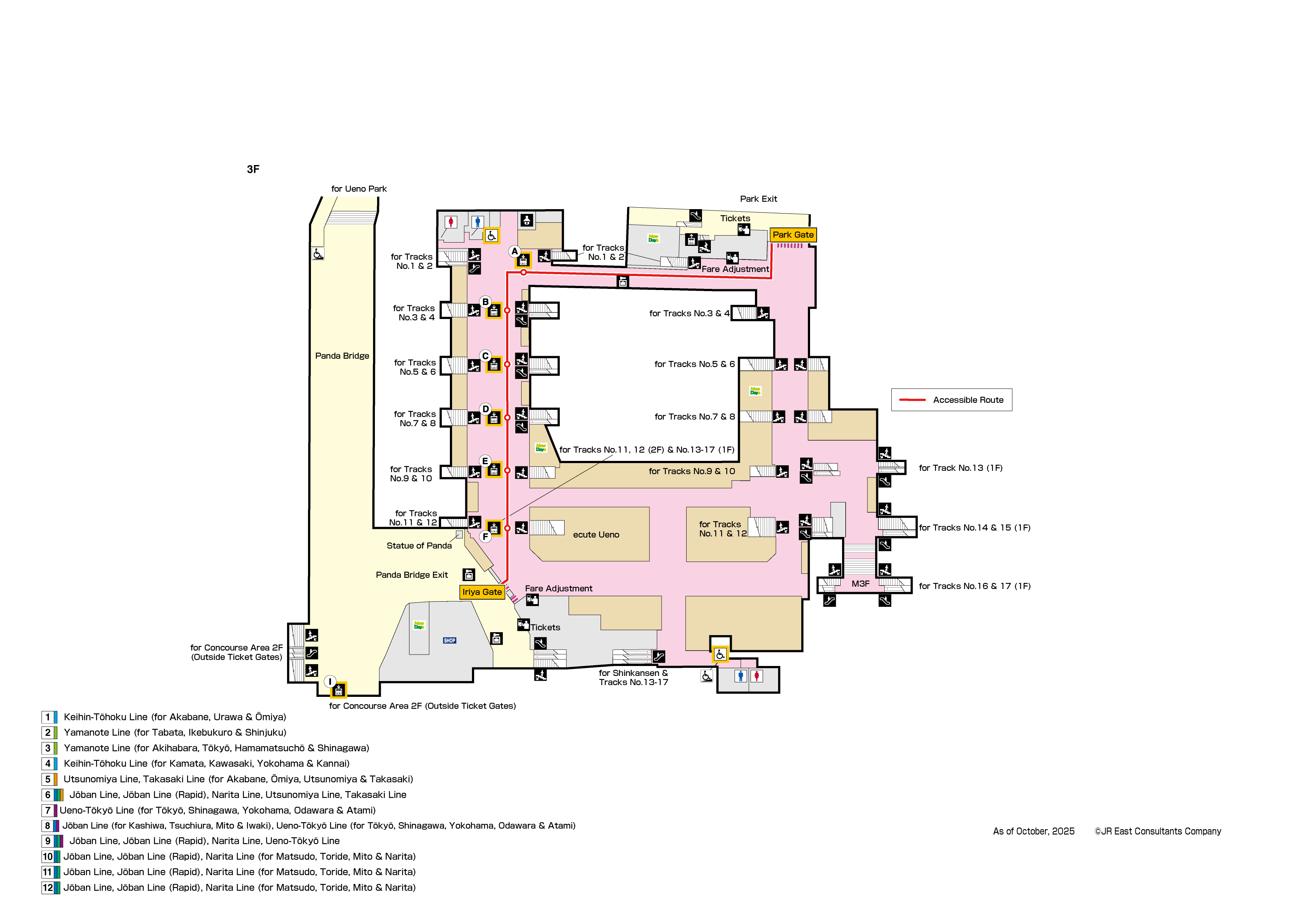
  • 3F
  • B4-B1
Ueno Station 1FMap
Ueno Station 2FMap
Ueno Station 3FMap
Ueno Station B4-B1Map